APPARTAMENTO ZONA CENTRALE MASER

In affitto
Appartamento
Maser
850 €
Descrizione
RIF. L058.PT-P1-P2
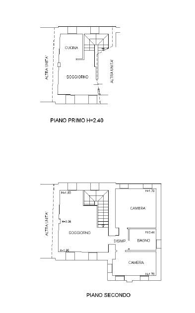
Enggard immobiliare propone in locazione in zona centrale di Maser, moderno appartamento di nuova costruzione, disposto su più livelli con ingresso al piano terra. La soluzione si distingue per la distribuzione interna funzionale e per le finiture contemporanee.

Al piano terra è presente l’ingresso con comodo ripostiglio. Salendo al piano primo si sviluppa la zona giorno con cucina , mentre al livello superiore troviamo un ampio soggiorno, un bagno e la zona notte composta da due camere.

Completano la proprietà due posti auto esterni. L’immobile è nuovo, dotato di riscaldamento autonomo e inserito in classe energetica A4, a garanzia di efficienza energetica e bassi consumi. Canone mensile richiesto pari a € 850,00 spese incluse, con disponibilità immediata. E' prevista la possibilità di avere la cucina arredata aggiungendo € 100,00 al canone. Soluzione ideale per chi ricerca un’abitazione moderna e ben organizzata, situata in posizione centrale e comoda a tutti i principali servizi.

L'immobile è disponibile da subito. Solo ed esclusivamente persone referenziate; si chiede di inviare una piccola lettera rappresentativa prima di contattare telefonicamente l'ufficio.

Ti informiamo che, nel rispetto della normativa sulla privacy, l’indirizzo riportato nell’annuncio è puramente indicativo e non corrisponde alla reale ubicazione dell’immobile. Per scoprire altre proposte, ti invitiamo a consultare il nostro sito web oppure a venirci a trovare direttamente in agenzia.
Caratteristiche principali
Codice:
L058.PT-P1-P2
Città:
Maser
Categoria:
Appartamento
Locali:
4
Camere:
2
Bagni:
1
Mq:
127
Posti auto:
2
Piano:
1
Anno:
2025
Classe energetica:
A4
Life Style:
Quiet
Stato Immobile:
Nuovo
Grado:
Medio
Posizione:
Centro
Panorama:
Vista Aperta
Orientamento:
Nord Ovest Sud
Lati Liberi:
3
Riscaldamento:
Autonomo
Tipo Riscaldam.:
Caldaia
Tipo Impianto:
Pavimento
Fonte Energetica:
Elettrico
Acqua Calda:
Autonoma
Infissi:
PVC
Serramenti:
Nuovo
Persiana:
Oscurante PVC
Pavim. Giorno:
Resina
Pavim. Notte:
Resina
Pavim. Cucina:
Resina
Pavim. Bagno:
Resina
Accessori
Doppi Vetri
Ripostiglio
Cookie preference