casa singola con giardino a Pieve

In vendita
4 o più locali
Pieve di Soligo
119.000 €
Descrizione
RIF. V159 – ESCLUSIVA ENGGARD
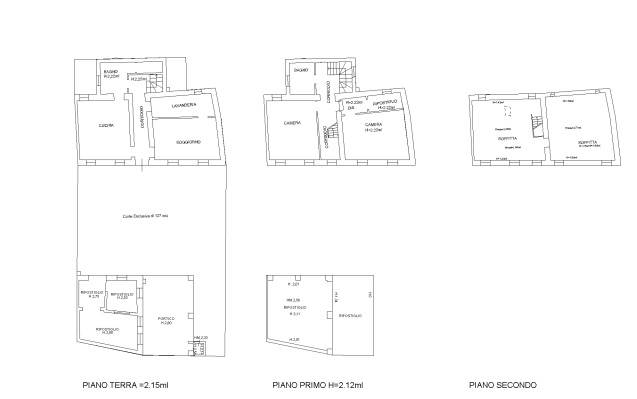
Enggard Immobiliare propone in vendita una porzione di casa situata a Pieve di Soligo. L’immobile si sviluppa su tre livelli terra, primo e secondo.
Al piano terra, l’ingresso conduce a un corridoio centrale che distribuisce gli ambienti: sulla destra si accede al soggiorno, seguito da una lavanderia, mentre sulla sinistra si trova la cucina, con bagno collocato a fondo ambiente. In fondo al corridoio è presente la scala interna che collega i piani superiori. Il piano primo è composto da un ulteriore corridoio che conduce, sulla destra, a un bagno e a una camera da letto, mentre sulla sinistra sono presenti un ripostiglio e una seconda camera. Il piano secondo ospita un’ampia soffitta, utilizzabile come spazio accessorio, deposito o locale di servizio.

Completa la proprietà una struttura polivalente, facilmente adattabile a diverse esigenze, ideale come lavanderia e deposito. A servizio della stessa è presente una tettoia che si presta ad essere utilizzata come comodo posto auto coperto.

Se sei interessato/a a questo immobile e desideri ricevere maggiori informazioni o fissare una visita, puoi contattarci telefonicamente o via e-mail. Ti informiamo che, nel rispetto della normativa sulla privacy, l’indirizzo riportato nell’annuncio è puramente indicativo e non corrisponde alla reale ubicazione dell’immobile. Per scoprire altre proposte, ti invitiamo a consultare il nostro sito web oppure a venirci a trovare direttamente in agenzia.
Caratteristiche principali
Codice:
V159
Città:
Pieve di Soligo
Categoria:
4 o più locali
Locali:
8
Camere:
2
Bagni:
2
Mq:
237,65
Mq Giardino:
127
Piano:
Terra
Anno:
1974
Classe energetica:
G
265,32 kWh/m²a
Stato Immobile:
Abitabile
Grado:
Medio
Posizione:
Centro
Panorama:
Vista Giardino
Orientamento:
Nord
Giardino:
Privato
Arredi:
Semi Arredato
Tipo Soggiorno:
Soggiorno
Tipo Cucina:
Abitabile
Riscaldamento:
Autonomo
Tipo Riscaldam.:
Caldaia
Tipo Impianto:
Termosifoni
Fonte Energetica:
Gas
Acqua Calda:
Caldaia
Infissi:
Legno
Serramenti:
Discreto
Persiana:
Oscurante Legno
Pavim. Giorno:
Ceramica
Pavim. Notte:
Laminato
Pavim. Cucina:
Ceramica
Pavim. Bagno:
Ceramica
Accesso Disabili:
Nessuna Barriera
Accesso interno disabili:
Parziale
Isolamento:
Non presente
Isolamento termico:
Nessuno
Isolamento acustico:
Nessuno
Destinato a residenti:
Si
Impianto d’irrigazione:
No
VMC:
No
Accessori
Canna Fumaria
Lavanderia
Ripostiglio
Video
Planimetrie
Cookie preference