Porzione di casa con scoperto

In vendita
Villa Bifamiliare
Sernaglia della Battaglia
129.000 €
Descrizione
RIF. V165 – ESCLUSIVA ENGGARD
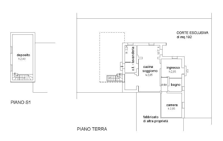
Enggard Immobiliare propone in vendita porzione di casa sita a Sernaglia della Battaglia, sviluppata principalmente al piano terra e dotata di corte esclusiva di circa 192 mq, elemento che garantisce indipendenza e spazi esterni di proprietà.

L’abitazione al piano terra è composta da ingresso, cucina-soggiorno organizzata in unico ambiente centrale, disimpegno, due bagni e camera da letto. La distribuzione interna risulta compatta e razionale, con ambienti ben collegati tra loro. Al piano seminterrato è presente un deposito, spazio accessorio utile per rimessaggio o magazzino, che amplia la funzionalità complessiva dell’immobile.

L’immobile si presenta in buono stato manutentivo e costituisce una soluzione adatta a chi ricerca autonomia abitativa e spazi esterni privati in contesto residenziale tranquillo.

Se sei interessato/a a questo immobile e desideri ricevere maggiori informazioni o fissare una visita, puoi contattarci telefonicamente o via e-mail. Ti informiamo che, nel rispetto della normativa sulla privacy, l’indirizzo riportato nell’annuncio è puramente indicativo e non corrisponde alla reale ubicazione dell’immobile. Per scoprire altre proposte, ti invitiamo a consultare il nostro sito web oppure a venirci a trovare direttamente in agenzia.
Caratteristiche principali
Codice:
V165
Città:
Sernaglia della Battaglia
Categoria:
Villa Bifamiliare
Locali:
4,5
Camere:
1
Bagni:
2
Mq:
107
Mq Giardino:
192
Piano:
Terra
Anno:
1960
Classe energetica:
C
141,18 kWh/m²a
Stato Immobile:
Buono
Grado:
Medio
Posizione:
Centro
Panorama:
Vista Giardino
Orientamento:
Nord Est
Lati Liberi:
3
Giardino:
Privato
Arredi:
Solo Cucina
Tipo Soggiorno:
Sala da Pranzo
Tipo Cucina:
Abitabile
Riscaldamento:
Autonomo
Tipo Riscaldam.:
Caldaia
Tipo Impianto:
Termosifoni
Acqua Calda:
Autonoma
Infissi:
Legno Doppio Vetro
Serramenti:
Discreto
Persiana:
Oscurante Legno
Pavim. Giorno:
Ceramica
Pavim. Notte:
Ceramica
Pavim. Cucina:
Ceramica
Pavim. Bagno:
Ceramica
Accessori
Doppi Vetri
Ingresso Indipendente
Lavanderia
Stufa a Pellet
Video
Planimetrie
Cookie preference